009
по соглашению
Рендеры
Описание
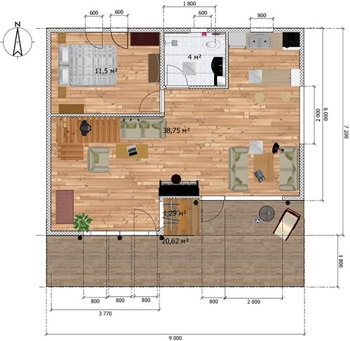
პირველი სართული – 60.4 კვ.მ.
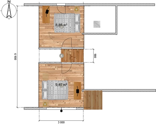
მეორე სართული – 20.4 კვ.მ.
Крытая терраса - 5 кв.м
ღია ტერასა – 15.8 კვ.მ.
Адрес
-
Страна Грузия
Обзор
- Номер объявления 009
- Цена по соглашению
- Тип объекта 100 მ²-მდე
- Статус объекта Рендеры
- Размер 101 m2
